Un nuevo bar y más baños, los planes para la piscina municipal de Zamora
El proyecto que dotará de nuevos servicios a la piscina de la Ciudad Deportiva sale a licitación
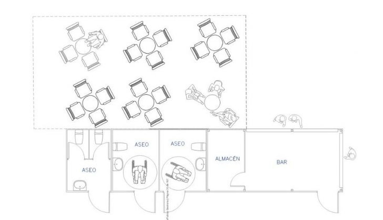
La nueva piscina al aire libre de la Ciudad Deportiva contará con nuevo equipamiento. Se trata de la construcción de un bar y varios aseos en la zona del césped entre la estructura de hormigón que alberga la piscina climatizada, y la recién estrenada piscina al aire libre.
Las edificaciones serán modulares y ocuparán una superficie aproximada de 30 m2 y estarán divididas en tres módulos. Uno donde se instalará el bar con un pequeño almacén, otro con dos aseos adaptados, y el tercero con dos cabinas para inodoros. Estos módulos estarán unidos entre sí, aunque tendrán accesos independientes.
Cada módulo tiene un acceso independiente con un pequeño almacén, otro es aseo adaptado con dos cabinas y dos accesos y el otro aseo con dos inodoros y un lavabo. Por ahora se trata de un proyecto en proceso ya que se ha publicado su licitación.
El periodo de presentación de ofertas estará abierto hasta el próximo 15 de mayo y será entonces cuando se proceda a elegir a la adjudicataria para la realización de la obra. Con los plazos sobre la mesa, desde el Ayuntamiento se prevé que el proyecto esté para este próximo verano, con la apertura de la instalación fijada para finales de junio.
También te puede interesar
Lo último